Alluminio Schuco
Design, Sicurezza ed Efficienza
I serramenti in alluminio Schuco e Metra, proposti da Sap Sistemi, rappresentano la sintesi perfetta tra prestazioni, estetica e sostenibilità. Progettati per l'alluminio, garantiscono una personalizzazione completa, abbinando alti standard di sicurezza anti-effrazione alle più recenti tecnologie disponibili.
Caratteristiche
- Sicurezza anti-effrazione: Offrono alti standard di sicurezza anti-effrazione
- Efficienza energetica: Garantiscono isolamento termico e contribuiscono al risparmio energetico
- Tenuta agli agenti atmosferici: Assicurano l'ottimale tenuta ad aria e acqua
- Massima trasparenza: Favoriscono la massima penetrazione della luce naturale
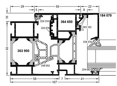
Schuco: AWS 65
Il sistema di finestre in alluminio Schüco AWS 65 è l’ideale per costruzioni con anta a scomparsa. Questa soluzione vanta una profondità costruttiva di 65 mm. Inoltre, Sap Sistemi offre un ricco assortimento di componenti, profili e accessori. In questo modo, è possibile realizzare qualunque progetto di design in abbinamento con le apparecchiature Schüco AvanTec e TipTronic.
Le finestre Schüco AWS 65 garantiscono una perfetta efficienza energetica. Oltre a ciò, sono sistemi affidabili e versatili. Infatti, soddisfano i requisiti più severi in fatto di comfort e design moderno.
Tipologie
• Finestra a un’anta;
• Finestra ad anta ribalta;
• Finestra ad anta vasistas e anta a ribalta;
• Finestra a vasistas;
• Scorrevole parallelo e a ribalta (PASK);
• Sopraluce a vasistas;
Materiali
• I profili sono estrusi in lega primaria di alluminio EN AW-6060 isolati termicamente.
• Tutte le guarnizioni sono in EPDM.
• Listelli isolanti in Politermid e in Poliamide.
Finiture
Le finestre in alluminio AWS 65 subiscono un trattamento superficiale realizzato secondo le direttive del marchio di qualità Qualicoat per la verniciatura e Qualanod per l’ossidazione anodica.
Prestazioni
Trasmittanza termica UNI EN 12412-2 Uf =2,0 – 2,5w/(m2k);
Resistenza alla spinta del vento UNI EN 12210 B5 -C5; Tenuta alla pioggia battente UNI EN 12208 9A;
Permeabilità all’aria UNI EN 12207 Classe 4;
Caratteristiche
Ampia gamma di profili Schuco AWS 65 RL (Residential Line), Schuco AWS 65 SL (Soft Line) Schuco AWS 65 SD (Soft Design) Schuco AWS 65 BS (Block System);
Alluminio Schuco: ASE 67 PD
Il sistema di porte scorrevoli Schüco ASE 67 PD garantisce elevata trasparenza e massima accessibilità. Grazie a Sap Sistemi, è possibile realizzare vetrate di grandi dimensioni con ante fino a 3200×3000 mm e pesi fino a 400 kg.
Questo sistema risulta elegante e discreto. Infatti, il telaio esterno è progettato per scomparire all’interno delle murature, lasciando in vista solo un sottilissimo nodo centrale di 31 mm. Inoltre, il sistema di apertura ottimizza l’accessibilità grazie alla soglia ‘0-level’ perfettamente piana. Di conseguenza, il passaggio tra interni ed esterni è molto più agevole. Questa soluzione favorisce l’accesso anche a bambini, anziani e persone con difficoltà di movimento.
Anta
• Grandi dimensioni dell’anta, fino a 3200 mm di larghezza e fino a 3000 mm di altezza;
• Inseribili vetri con spessore fino a 49,6 mm;
• Peso dell’anta fino a 400 kg (200 kg con sforzi di manovra limitati);
• Movimento di apertura della maniglia esclusivo, unicità della soluzione sul mercato;
Soglia
• Sistema di scorrimento innovativo, comodo da rimuovere per le pulizie;
• Sostituzione del carrello senza smontaggio dell’anta;
• Soglia “0-level”, nessun inciampo a terra passaggio facilitato, tenuta all’acqua fino a 300Pa;
Meccanismo di chiusura
Nuovi dispositivi di chiusura completamente integrati: chiusura nel nodo centrale (nessuna maniglia aggiuntiva necessaria) oppure chiusura laterale con maniglia e meccanismo di apertura integrati;
Design minimalista della maniglia con impugnatura ergonomica;
Movimento di apertura della maniglia esclusivo, unicità della soluzione sul mercato;
Ingombri
Integrazione ottimale nell’edificio grazie alla bassa altezza del telaio fisso da 57 mm o da 90;
Sezione in vista da 31 mm in corrispondenza del nodo centrale;
Profondità costruttiva base del profilo di anta: 67 mm;
Telaio fisso a scomparsa;
Schuco: ASS 77 PD.SI
“Le porte scorrevoli Schüco ASS 77 PD.SI si caratterizzano per l’estrema varietà di soluzioni di design. Questi sistemi sono studiati su profili in plastica pultrusa rinforzata con fibre di vetro. Grazie a tecnologie all’avanguardia nei materiali, offrono un elevato isolamento termico con valori Uw da 0,84 W/(m²K).
Le porte Schüco ASS 77 PD.SI utilizzano profili rivestiti in serie direttamente dalla casa madre. Per questo motivo, il serramentista non deve effettuare ulteriori investimenti in macchinari. Inoltre, il montaggio delle apparecchiature risulta semplicissimo, permettendo una produzione economica. Infine, la tecnologia di azionamento è integrata nel profilo per garantire un alto grado di prefabbricazione in officina.
Sicurezza
Antieffrazione fino alla classe RC 2 secondo DIN V ENV 1627;
Riconoscimento automatico del carico e della resistenza: maggiore sicurezza di serie;
I sensori di sicurezza aggiuntivi garantiscono maggiore protezione e massimo comfrot (in base ai requisiti).
Energia
Isolamento termico: da Uw = 0,84W/(m2K);
Possibilità di utilizzare spessore del vetro fino a 60 mm;
Isolamento termico ottimale per massimo comfort.
Automazione
Pannello di controllo esterno o pulsante: funzionamento e chiusura rapidi, silenziosi e comodi, con il solo tocco di un pulsante;
L’azionamento automatico a scomparsa e la tecnologia di chiusura offrono il massimo comfort per gli utenti;
Può essere combinato con lettore di impronte digitali o con Schuco Door Control System (DCS).
Design
Vetraggio a tutta altezza per il massimo livello di trasparenza e penetrazione della luce;
La coerenza nell’uso dei colori dà all’edificio un look uniforme – quando sono chiusi, all’esterno sono visibili solo le superfici in alluminio;
Soluzione innovativa con binari per pesi elevati dell’anta, fio a 500 kg.
Funzionalità avanzate
Sostituzione dei carrelli senza smontaggio dell’anta mobile: risparmio sui costi per l’intera durata del prodotto;
Azionamento integrato in modo intelligente: possibilità di manutenzione e intervento sui motori nel telaio fisso in qualsiasi momento.
Schuco: 77 PD.HI
“Il sistema per infissi in alluminio Schüco ASS 77 PD.HI di Sap Sistemi offre un ampio ventaglio di aperture e telai fissi. Inoltre, garantisce la massima varietà di opzioni di design all’interno del portfolio Schüco Panorama Design.
Questa tecnologia assicura il più alto isolamento termico e una grande flessibilità. Ad esempio, l’angolo di 90°, le apparecchiature manuali e i telai a tre binari consentono opzioni di design illimitate. In questo modo, è possibile creare un’architettura trasparente e luminosa. Infine, il sistema assicura caratteristiche ottimali di comfort per ogni abitazione.
Sicurezza
Pannello di controllo o pulsante: funzionamento e chiusura rapidi, comodi, con il solo tocco di un pulsante;
Tecnologia intelligente con sensori per il massimo comfort;
L’azionamento automatico a scomparsa e la tecnologia di chiusura offrono il massimo comfort per gli utenti.
Energia
Pannello di controllo o pulsante: funzionamento e chiusura rapidi, comodi, con il solo tocco di un pulsante;
Tecnologia intelligente con sensori per il massimo comfort;
Telaio fisso in alluminio con geometria efficace del profilo isolante per un’inerzia termica ottimale.
Design
Sistema scorrevole con isolamento termico, con massima trasparenza e penetrazione di luce;
Nuovo design senza maniglie, con linee pulite;
Dimensioni anta (L x H): massimo 3200 x 3500 mm;
Sezioni in vista da 37mm nel nodo centrale;
Peso dell’anta fino a 500 kg.
Funzionalità e vantaggi
Sostituzione dei carrelli senza smontaggio dell’anta mobile;
Tecnologia di azionamento e di chiusura con cura e manutenzione facili; Montaggio semplicissimo delle apparecchiature per una lavorazione economica
Tecnologia di azionamento integrata nel profilo: alto grado di prefabbricazione in officina.
Alluminio Schuco: 77 PD.HI Manuale
Il sistema scorrevole Schüco Panorama Design di Sap Sistemi garantisce una perfetta integrazione nella muratura. Infatti, il telaio fisso presenta un’altezza ridotta di soli 90 mm o 58 mm.
Questa soluzione utilizza una tecnologia integrata di chiusura e blocco. In questo modo, è possibile chiudere l’anta mobile in posizione di arresto in totale sicurezza. Inoltre, la maniglia è posizionata al di fuori della zona di collisione per facilitare l’uso.
Per questi motivi, il sistema senza componenti meccatronici è molto vantaggioso. Rappresenta infatti una soluzione economica ideale per abitazioni esclusive ed edifici commerciali.
Sicurezza
Chiusura manuale con 2 punti di chiusura;
Chiusura in 4 punti per una maggiore sicurezza (optional).
Energia
Sistema scorrevole con isolamento termico, con apparecchiatura manuale;
Isolamento termico: da Uw = 0,96 W/(m2K);
Listelli di isolamento con schiuma per isolamento termico efficace;
Possibilità di utilizzare spessori del vetro fino a 50 mm.
Design
Libera scelta di maniglie con una distanza di 350 mm tra i supporti: opzioni di design personalizzate;
Scelta flessibile degli stili sulla base del telaio fisso a due binari;
Peso dell’anta fino a 300 kg;
Dimensioni anta (L x H): massimo 3200 x 3000 mm.
Funzionalità Avanzate
Il sistema innovativo di rotaie di guida può essere rimosso facilmente;
Manutenzione e sostituzione dei carrelli senza rimuovere l’anta mobile.
Vantaggi Lavorazione
Lavorazione con giunzione o con taglio a squadra del telaio fisso;
La combinazione del telaio fisso può essere scelta liberamente;
Altezza del telaio fisso: orizzontale 90 mm, verticale 90 mm o 58 mm.
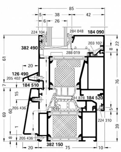
Alluminio Schuco: AWS 75 SI+
La serie flessibile di finestre in alluminio Schüco AWS 75.SI offre una profondità costruttiva di 75 mm. Grazie alla tecnologia SimplySmart di Sap Sistemi, questo sistema garantisce il massimo isolamento termico con il design SI (Super Insulation). Inoltre, la sezione in vista di 117 mm permette di coniugare alti livelli di funzionalità e design.
La guarnizione centrale continua e il nuovo isolamento cingivetro assicurano standard tecnici elevati. Allo stesso tempo, l’installazione risulta molto più rapida. Questo è possibile grazie alla nuova generazione di apparecchiature meccaniche Schüco AvanTec SimplySmart.
Infine, la variante ‘block’ Schüco AWS 75 BS.SI+ soddisfa i requisiti architettonici più severi. Infatti, il telaio dell’anta a scomparsa garantisce un design snello e la massima trasparenza.
Sicurezza e Automazione
Antieffrazione fino a RC 3. Possibilità di soluzioni di apparecchiature motorizzate con Schuco TipTronic.
Energia
Isolamento termico massimo con valori Uf da 0,92 W/(m²K) per le finestre in alluminio;
Valore Uf = 1,2 W/(m²K) con sezione in vista 117 mm, valore Uw = 0,90 W/(m²K) e valore Ug = 0,6 W/(m²K);
Guarnizione centrale con pinna in gomma microcellulare;
Variante di sistema di finestre “block” con isolamento termico eccezionale.
Design
Interessanti opzioni di design: Schuco AWS 75 BS.SI+ con anta a scomparsa come finestra “block” e Schuco AWS 75 WF.SI+ con estetica a montanti e traversi;
Anta opzionale in stile standard e RL (Residential Line).
Funzionalità Avanzate
Disponibile anche l’apertura verso l’esterno come optional.
